
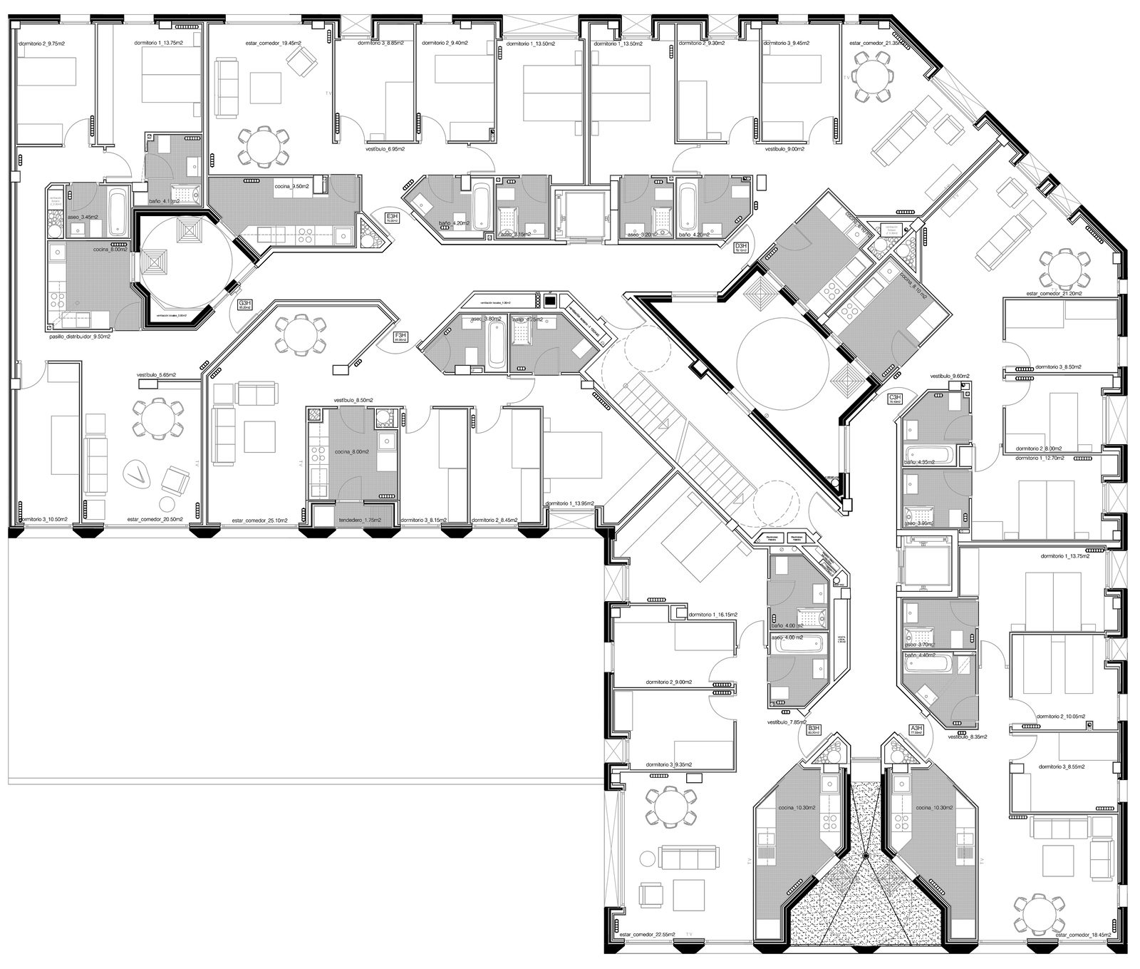
La promoción residencial de 37 viviendas en Peñacastillo se concibe como un conjunto urbano compacto que busca una integración equilibrada con el entorno existente. La propuesta apuesta por una arquitectura contemporánea de líneas claras, donde la repetición ordenada de los elementos de fachada genera una imagen homogénea y reconocible. La disposición de las viviendas favorece la iluminación natural y optimiza las relaciones entre espacios interiores y exteriores.
Ubicación: Peñacastillo, Santander
Año: 2024
Tipología: Vivienda colectivaPrograma: 37 viviendas
