
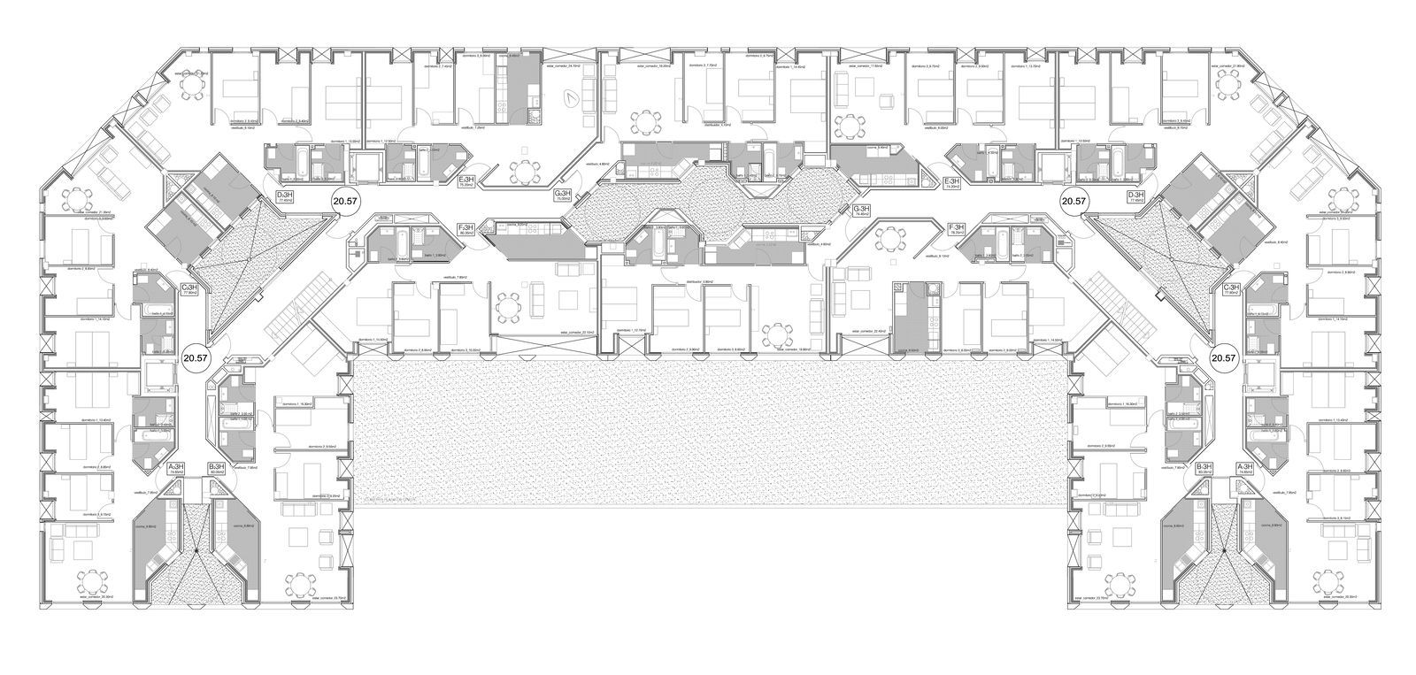
La promoción de 70 viviendas en Peñacastillo plantea un conjunto residencial contemporáneo organizado en torno a un gran espacio interior comunitario. La arquitectura combina volúmenes claros y materiales sobrios, generando una imagen urbana reconocible y equilibrada. La disposición de las viviendas y las amplias aperturas favorecen la iluminación natural y la relación visual con el entorno.
Ubicación: Peñacastillo, Santander
Año: 2024
Tipología: Vivienda colectivaPrograma: 70 viviendas



